Tầng thượng Xanh tươi giữa khu Đống Đa của kiến trúc sư người Việt lên báo nước ngoài
Hà Nội được xem như một trong những thành phố ô nhiễm nhất thế giới. Các hoạt động sản xuất công nghiệp ồ ạt cũng như quy hoạch có nhiều điểm hạn chế, lượng xe cộ khổng lồ đồ về Thủ đô hàng ngày khiến không khí ô nhiễm một cách nặng nề.
|
Pavilion Of The Origins - Hung Nguyen Architects
Trong hoàn cảnh đó, bất cứ ai đang sinh sống và làm việc tại Hà Nội đều khao khát được sống trong một không gian xanh, được hít thở không khí trong lành. Trước bài toán này, Pavilion Of The Origins đã ra đời, như một giải pháp để con người có thể sinh sống an yên trong môi trường xanh mát bóng cây.
Thiết kế Pavilion Of The Origins đến từ Hung Nguyen Architects đã gây tiếng vang mạnh mẽ trên các trang báo kiến trúc uy tín của nước ngoài như ArchDaily, Designtimes, Designboom...
Thông tin dự án:
- Chịu trách nhiệm thiết kế: Hung Nguyen Architects
- Địa điểm: Đống Đa, Hà Nội, Việt Nam
- Kiến trúc sư: Hùng Nguyễn
- Diện tích: 18m2
- Năm hoàn thành: 2017
- Ảnh: Nguyễn Thái Thạch
Pavilion Of The Origins chính xác là một khoảng không gian, không phải một ngôi nhà.
Không gian này nằm trên sân thượng của một căn nhà 3 tầng tại Hà Nội, với kết cấu chính được tạo thành bởi nhiều khung hình hộp. Mỗi khung hình hộp nhỏ đóng vai trò như một ô lều (pavilion) nhỏ dành cho vài cái cây, sau đó sự chồng chất của rất nhiều khung hình hộp tạo ra một "pavilion" lớn phù hợp với tỷ lệ con người.
|
Bên trong Pavilion of the Origins
Với sự thay đổi cao độ liên tục, các không gian trong không gian chảy vào nhau. Ánh sáng được rót xuống, gió đi xuyên qua từng khoảng trống. Ranh giới giữa trong và ngoài bị mờ nhòe. Một mối quan hệ hài hòa được thiết lập giữa con người, tự nhiên và không gian.
|
|
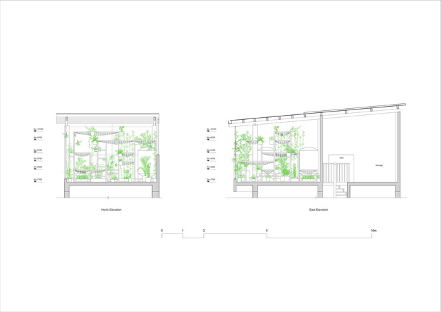
Các sơ đồ mặt cắt của Pavilion Of The Origins
|
Vị trí của Pavilion Of The Origins, gần phố Thái Thịnh và Tây Sơn
Pavilion Of The Origins là một ví dụ đáng học hỏi để mang lại không khí trong lành. Bằng cách thiết lập một không gian nơi cây cối có thể sinh sống, không đơn giản chỉ để trang trí mà còn có tác dụng làm sạch không khí bằng cách hấp thu độc tố từ môi trường xunh quanh.
|
Ở những độ cao khác nhau, các chậu cây hình lập phương 200x200x200mm được treo lơ lửng xung quanh để phân bố sự lọc khí tới mọi ngóc ngách của pavilion
Ở những độ cao khác nhau, các chậu cây hình lập phương 200x200x200mm được treo lơ lửng xung quanh để phân bố sự lọc khí tới mọi ngóc ngách của pavilion
Kết cấu mảnh mai này chỉ như một sự can thiệp khiêm nhường của con người đối với tự nhiên. Kiến trúc, theo ý nghĩa này, đóng vai trò như một sợi dây để buộc chặt mối tương tác và kết nối giữa con người và tự nhiên.
|
Những loại cây được trồng bên trong Pavilion of the Origins
|
Màu xanh của cỏ cây trên nền sơn trắng tạo sự hài hòa và thanh mát
Màu trắng của những khung thép, đá cuội và sàn nhà hòa lẫn vào màu xanh của cỏ cây và bầu trời. Ánh sáng được phản chiếu theo nhiều hướng trong khi mái nhà bằng polycarbonate mờ làm giảm bức xạ mặt trời.
|
Ánh sáng được phản chiếu theo nhiều hướng trong khi mái nhà bằng polycarbonate mờ làm giảm bức xạ mặt trời
Cây xanh được trồng dọc theo các cấu trúc để đảm bảo luôn hấp thu đủ ánh sáng. Bên trong không gian này, người ta có thể len lỏi, trèo lên các khối hộp bằng thép, ngả lưng ra chiếc võng nổi để tìm thấy sự tĩnh lặng và bình yên trong con người.
|
Bên trong không gian này, người ta có thể len lỏi, trèo lên các khối hộp bằng thép, ngả lưng ra chiếc võng nổi để tìm thấy sự tĩnh lặng và bình yên trong con người
Ở đây, ánh sáng bị tán xạ và trung hòa bởi màu sắc và kết cấu không gian. Có thể cảm nhận rõ những luồng không khí lưu thông, sự thay đổi của thời tiết, những chuyển động của con người...
|
Ở đây, ánh sáng bị tán xạ và trung hòa bởi màu sắc và kết cấu không gian. Có thể cảm nhận rõ những luồng không khí lưu thông, sự thay đổi của thời tiết, những chuyển động của con người
Chiêm ngưỡng thêm một số hình ảnh tuyệt đẹp của Pavilion Of The Origins:
|
|
|
|
|
Theo ArchDaily
Long.J
Tin bài liên quan
Các tin bài khác
Thời tiết hôm nay (06/01): Miền Bắc tiếp tục rét đậm, thấp nhất 12 độ C
Thời tiết hôm nay (02/01): Bắc Bộ và Bắc Trung Bộ rét đậm
Chính sách mới có hiệu lực từ tháng 1/2026
Các điểm bắn pháo hoa đêm giao thừa Tết dương lịch 2026 tại Hà Nội, TP.HCM
Đọc nhiều
Đại sứ Lào tại Việt Nam: Tin tưởng Đại hội XIV sẽ đưa Việt Nam bước vào giai đoạn phát triển nhanh và bền vững
Bạn bè quốc tế chúc mừng Đại hội XIV của Đảng Cộng sản Việt Nam
Tiến sĩ Nguyễn Hồng Sơn: Phát huy trí tuệ kiều bào để thúc đẩy kinh tế tư nhân và đổi mới sáng tạo
Hội hữu nghị Việt Nam - Campuchia thành phố Hà Nội: Đổi mới công tác đối ngoại nhân dân năm 2026
Bờ cõi biển đảo
Miền đất - Con người Cuộc sống vùng biên Nhịp sống biển đảo Lịch sử chủ quyền Giao lưu hữu nghị
Trao Bằng Tổ quốc ghi công liệt sĩ Phạm Văn Tuân hy sinh tại Trường Sa
Bộ Tư lệnh Vùng Cảnh sát biển 4 động viên cán bộ, chiến sĩ trước nhiệm vụ chống IUU dịp Tết
Việt Nam hoàn thiện và gửi báo cáo chống khai thác IUU tới Ủy ban châu Âu
[Video] 10 sự kiện văn hóa, thể thao và du lịch tiêu biểu năm 2025
Plan International Việt Nam hỗ trợ khẩn cấp hơn 1,8 tỷ đồng cho người dân Đà Nẵng sau bão
Vietnam Happy Fest 2025: Lan tỏa những giá trị hạnh phúc giữa lòng Hà Nội
[VIDEO] Tổ chức Cứu trợ Trẻ em tiếp sức trẻ em Bắc Ninh sớm quay về nhịp sống sau thiên tai
[Video] World Vision hỗ trợ hơn 1.100 người dân Quảng Ngãi tiếp cận nước sạch bền vững
[Video] Đồng tâm, dốc sức cứu trợ đồng bào vùng lũ
[Video] Ấn Độ tặng Giải thưởng Hòa bình Romesh Chandra cho bà Nguyễn Thị Bình
[Video] Lễ dâng y Kathina tại Đà Nẵng: Sợi dây gắn kết Phật giáo các nước châu Á
Cả nước hướng về Thái Nguyên: Chung tay giúp người dân vượt qua mưa lũ
Trailer lễ hội Văn hóa Thế giới tại Hà Nội lần thứ nhất
[Video] Không khí rộn ràng ngày khai giảng năm học mới trên cả nước
[Video] Petr Tsvetov: Việt Nam ấm áp và thân thuộc
Việt Nam - Cuba: 65 năm cùng chung nhịp đập
[Video] Thiếu tướng Lào kể chuyện nhân dân Việt Nam che chở giữa mưa bom 1972





